VANCOUVER SPECIAL RENOVATION

Location: East Vancouver

Project Lead + Designer: Harmen Verbrugge, hv design ltd.

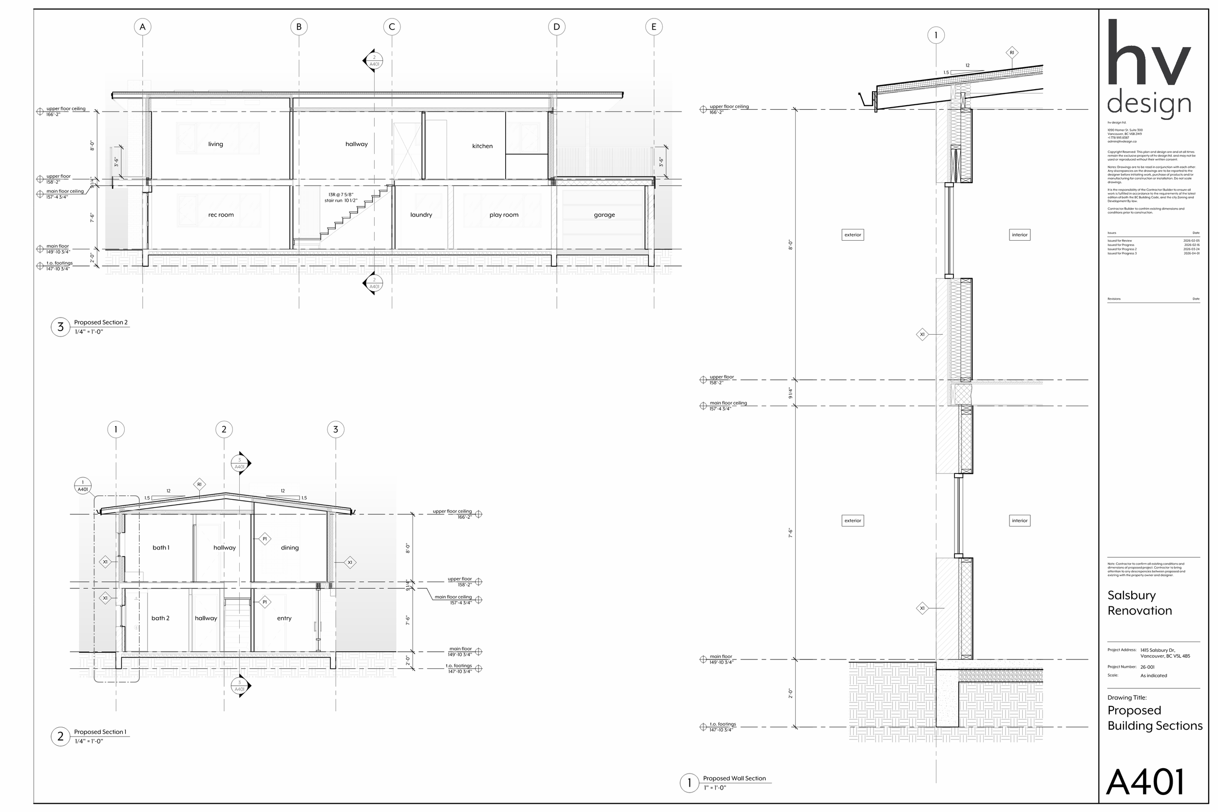
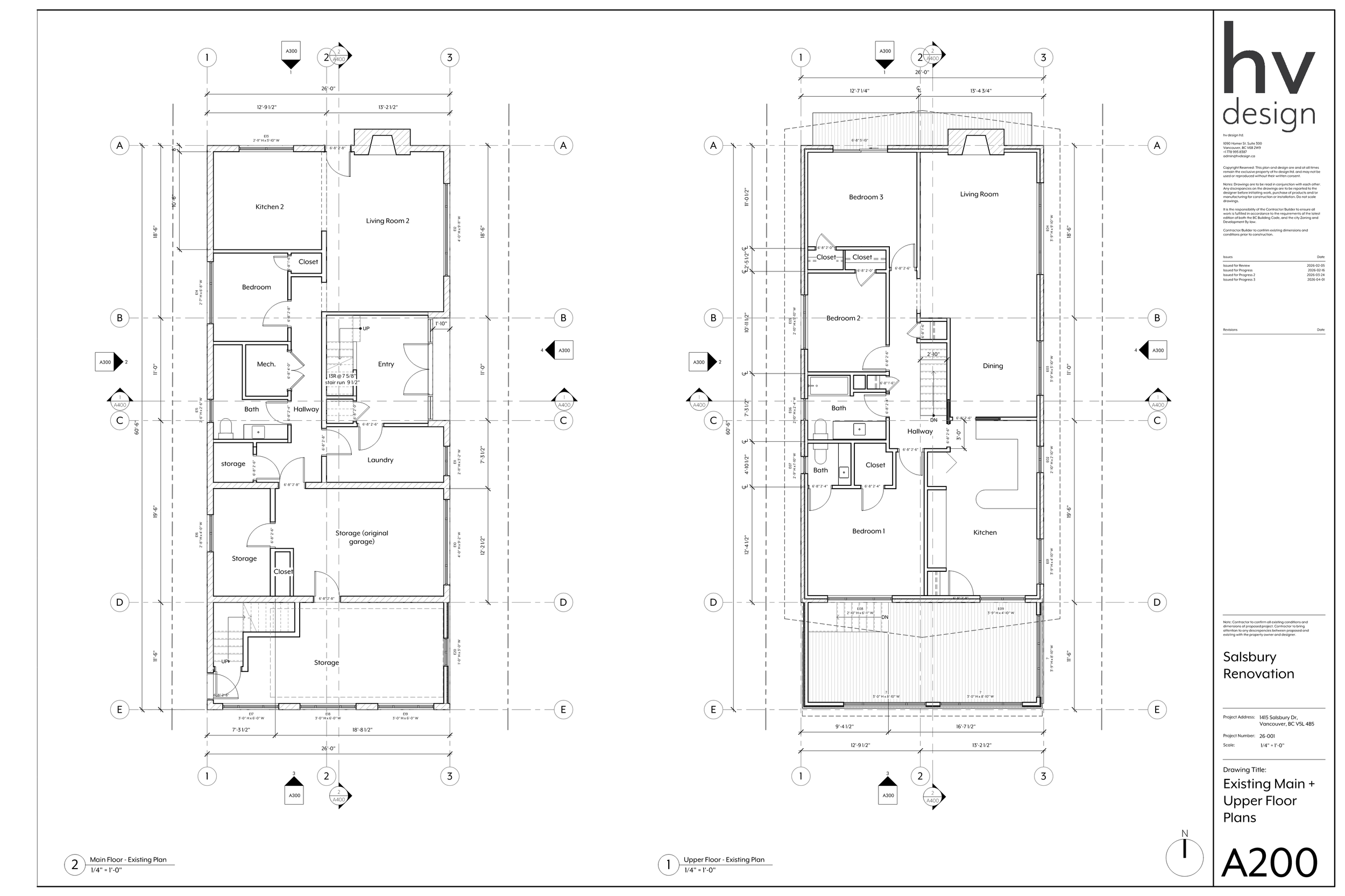
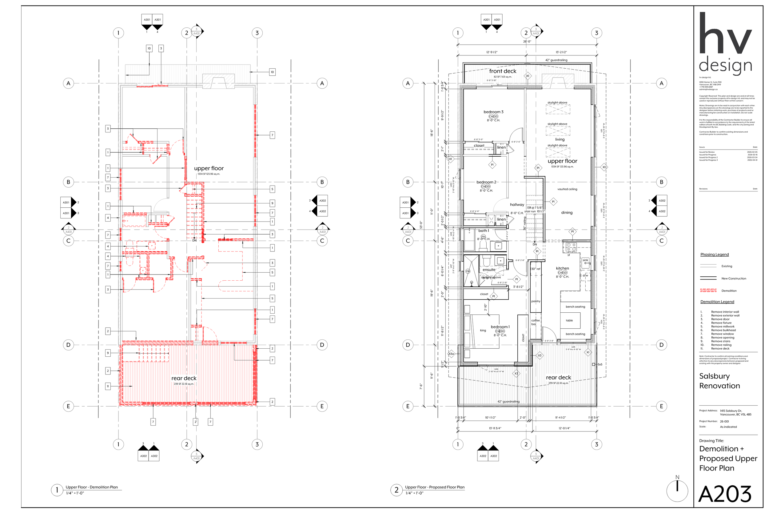
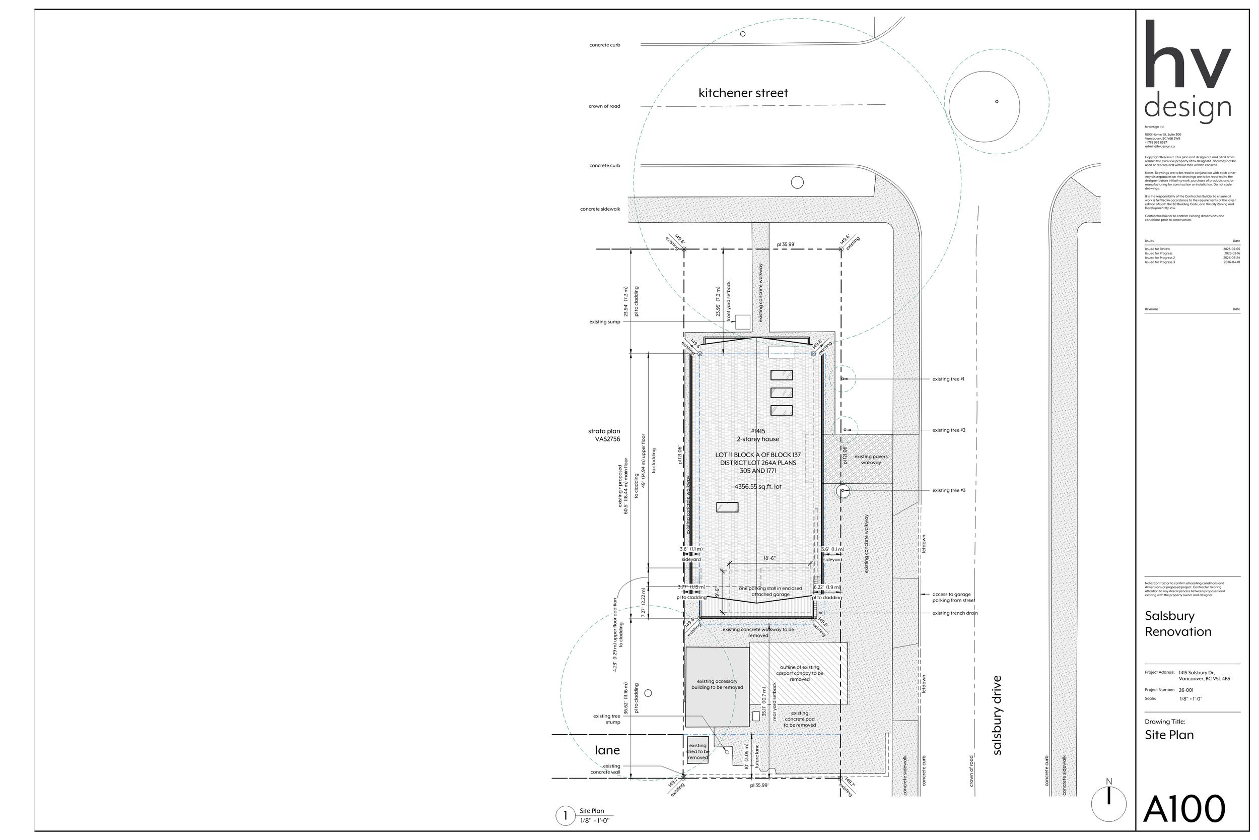
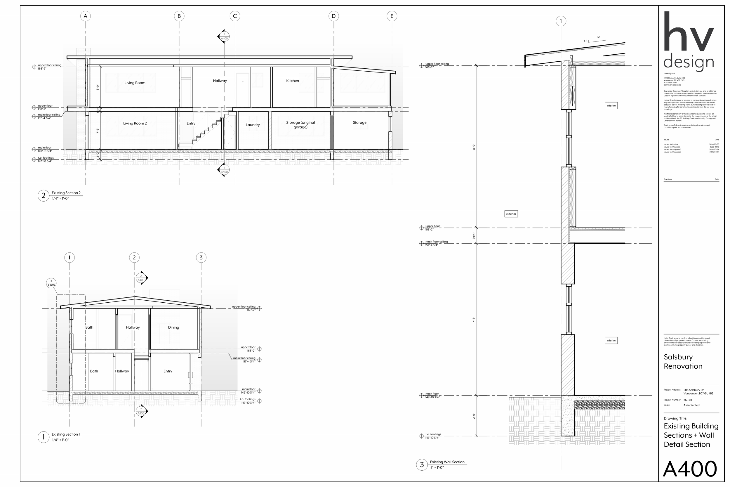
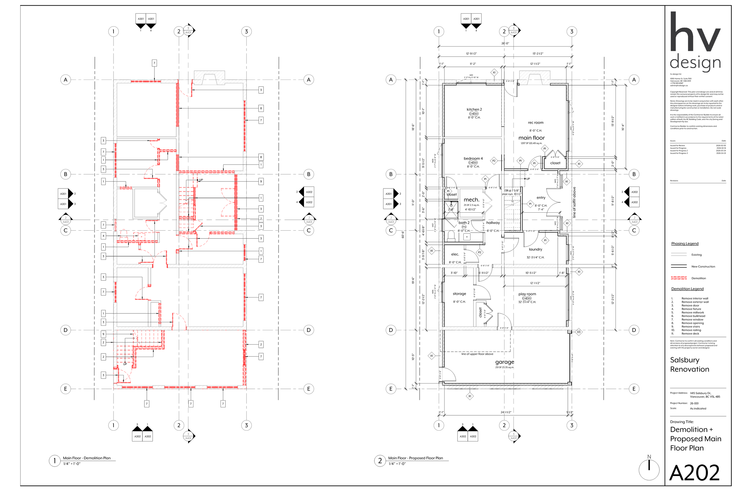
I was approached by a local builder to provide a set of BP ready drawing package for a client in East Vancouver. They wanted to preserve and upgrade a “Vancouver Special” home. We came up with a solution to insulate, air tightness, and weatherproof the existing exterior walls to satisfy the REUP with COV.