portfolio
about
contact
Menu
Harmen Verbrugge
intern architect aibc, m.arch, cert. asct, b.mgmt
portfolio
about
contact
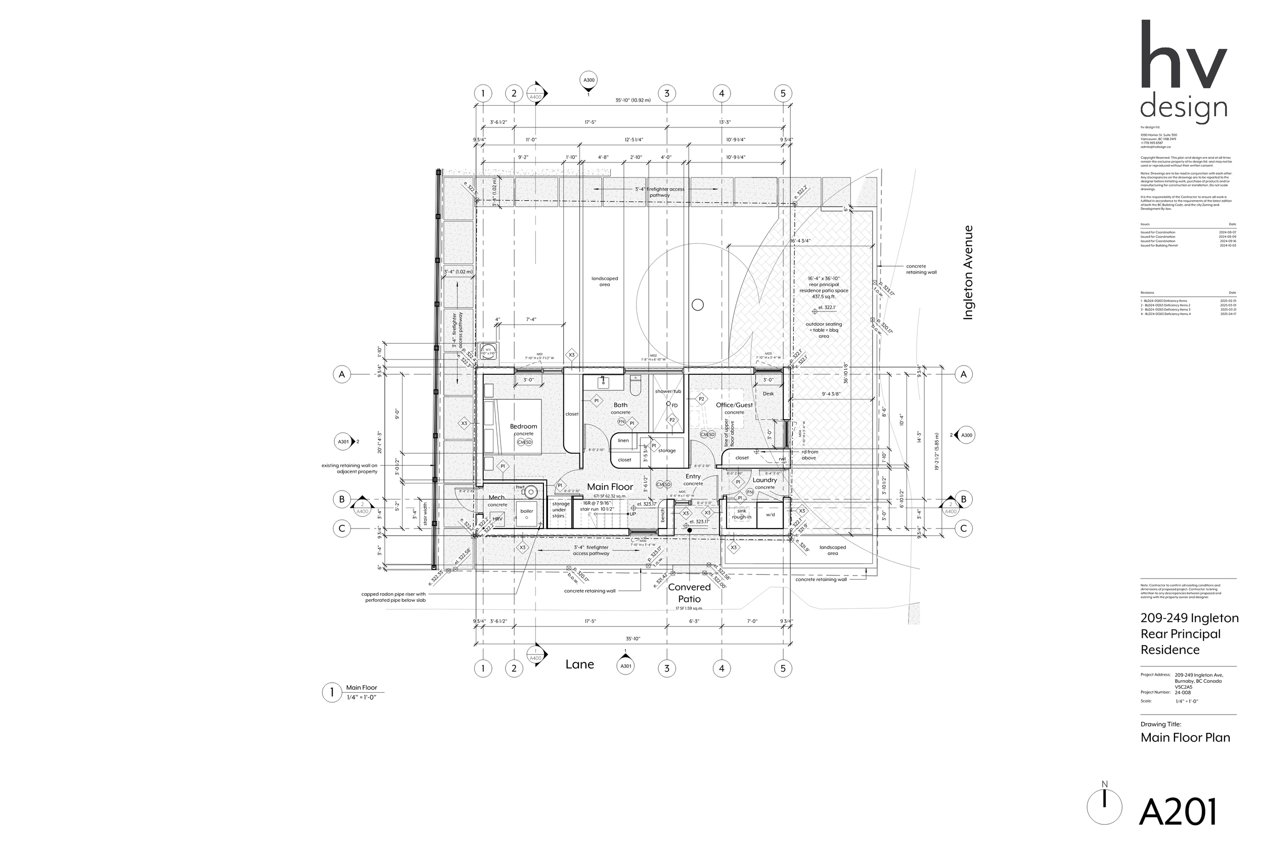
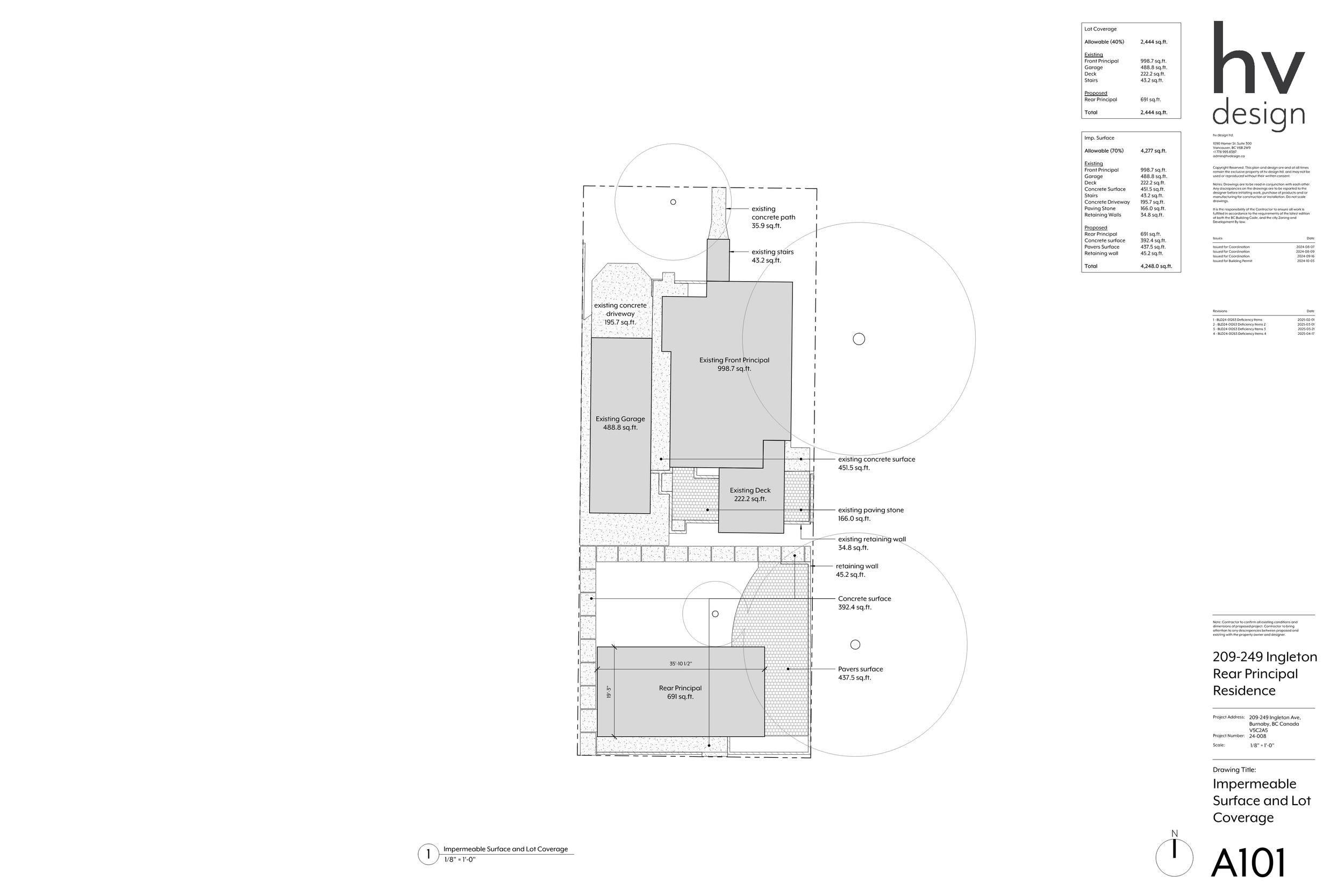
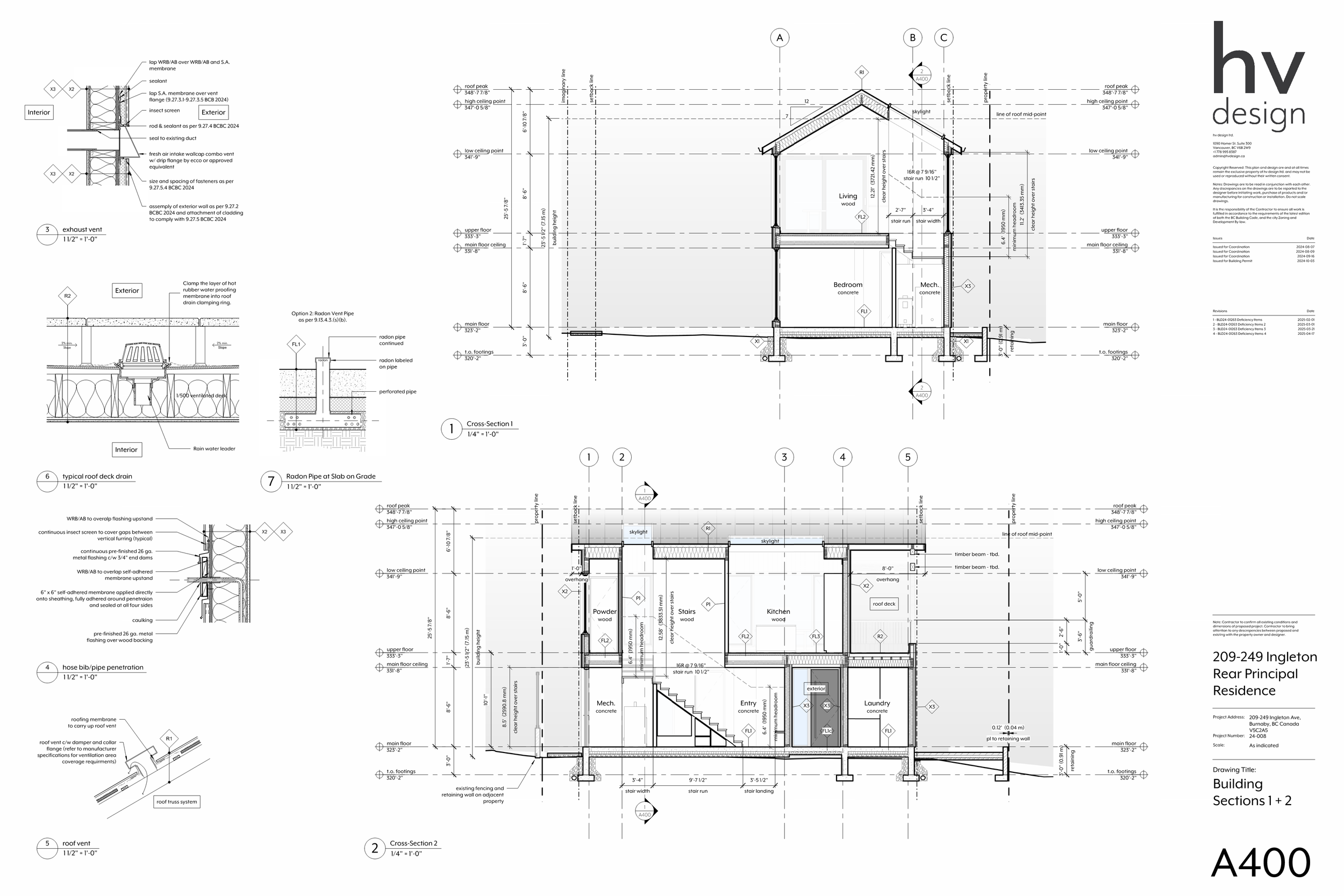
Pandora Laneway
Location: Burnaby, BC
hv design ltd.